The Floor Plan & Survey
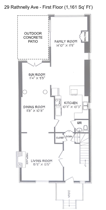
The Main Floor (1,161 sq ft)
This ultra 30ft wide home with large windows and lots of light, offers unlimited possibilities to create a large and modern open concept main living area. The large concrete patio off the sun room and family room has the potential to be squared off and enclosed to create an even larger and dramatic living room with full windows in the back overlooking the backyard.
The private, 30ft wide parking pad area off the back of the house (laneway access) accommodates 3 car parking. The cities promotion of laneway homes means the possibility to have a garage with living space above for inlaw, caregiver or AirBnB possibilities also increase the value of this property.


The Second Floor (1,084 sq ft)
Originally designed as 3 bedrooms with large master ensuite, balcony off master bedroom and large private master office. This space is able to be redesigned into whatever the new owner desires. The area to left of the balcony and master bedroom could be enclosed from main floor up to achieve even more space or an additional bedroom. The possibilities are endless and up to you to reimagine this large space.
Third Floor Possible (additional 1,000 sq ft)
A third floor addition would be easily approved by the city given most homes, though less wide and deep, have 3rd floors. Home to the north of 29 Rathnelly is same original home design/architect from 1904 and has added a 3rd floor, so approval precedent has been made. Home to south also has a 3rd floor.


The Basement
Not your typical basement. This basement is full of light and very high ceilings. It does not feel like a basement at all. The space had various uses previously: a fully separate rentalble apartment, as a caregiver quarters, inlaw quarters, lucritive AirBnB and additional family space. It was renovated in the last 4 years.


Legal Survey - Lot 12 M-69
City of Toronto , Municipality of Metropolitan Toronto
29 Rathnelly Ave



